売買 新築物件 - 尾張旭市平子町長池上 新築戸建
駐車場有
- 販売価格
- 4,490万円
- 間取り・築年数
-
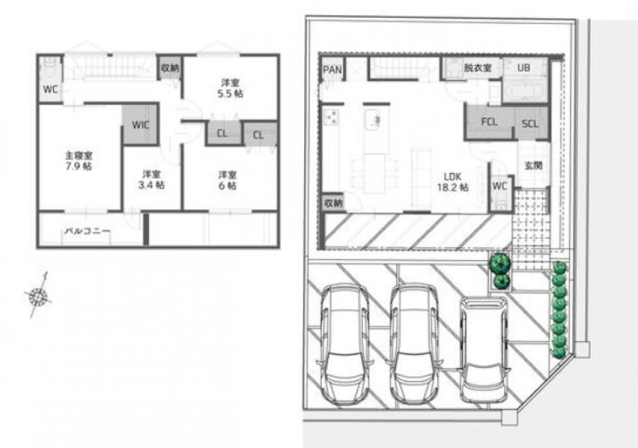
4LDK
2025年6月 (築1年)
- その他諸経費
- 住所・交通・学区
-
愛知県 尾張旭市平子町長池上 新築戸建
学区:城山小学校・旭中学校
名鉄瀬戸線 旭前駅 徒歩22分
物件ID:2268
上水道
電気
ガス(都市)
浄化槽
- 地目
- 宅地
- 地勢
- 平坦
- 都市計画
- 市街化区域
- 取引態様
- 媒介
- 用途地域
- 1種低層
- 構造材質
- 木造
- 引き渡し
- 相談
- 土地権利
- 所有権
- 角地
- 角地
- 土地面積
- 150.00m² (45.38坪)
- 建物面積
- 103.71m² (31.37坪)
- 建ぺい率
- 60%
- 容積率
- 100%
- 接道状況
- 南側・北東側/公道
- 道路幅員
- 南側・5m/北東側・4m
人気の城山小学校が徒歩6分!
スカイワードあさひが近く、城山公園にある遊具で日中遊べますよ。
い閑静な住宅街にある新築戸建。陽射しもたっぷり入り、気持ちが良いです。
◆不動産のことなら安心と信頼のトリトン住宅販売にお任せくださいませ
い閑静な住宅街にある新築戸建。陽射しもたっぷり入り、気持ちが良いです。
◆不動産のことなら安心と信頼のトリトン住宅販売にお任せくださいませ





