賃貸 貸家 - 東古瀬戸町 貸家
オススメ駐車場有
- 賃料
- 3.5万円
- 間取り・築年数
-
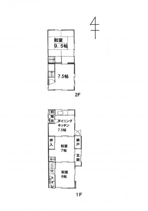
4DK
1975年3月 (築51年)
- その他諸経費
-
礼金:なし
敷金:賃料3ヶ月分
- 住所・交通・学区
-
瀬戸市エリア
愛知県 瀬戸市東古瀬戸町 貸家
学区:にじの丘小学校・にじの丘中学校
名鉄バス【古瀬戸停】 徒歩2分
物件ID:2234
上水道
電気
ガス(プロパン)
浄化槽
- 地目
- 宅地
- 都市計画
- 市街化区域
- 取引態様
- 専任
- 現況
- 空家
- 用途地域
- 準工業
- 構造材質
- 木造
- 引き渡し
- 相談
- 土地面積
- 100.39m² (30.37坪)
- 建物面積
- 75.70m² (22.9坪)
近隣にはダイソーがあり便利な貸家
品野方面や長久手方面にも通いやすい場所にある貸家。
近隣にはダイソー店やシルビア珈琲や中華料理屋があり、生活に困りませんよ。大通りから一本入っているので静かに暮らせます。
◆不動産のことなら安心と信頼のトリトン住宅販売にお任せくださいませ!
近隣にはダイソー店やシルビア珈琲や中華料理屋があり、生活に困りませんよ。大通りから一本入っているので静かに暮らせます。
◆不動産のことなら安心と信頼のトリトン住宅販売にお任せくださいませ!





